SERVICIOS
Servicios
En servicios, estamos enfocados en construcciones, proyectos y supervisiones de todo tipo, en el ámbito público y privado, contando con colaboradores de amplia experiencia, pensando en las diferentes necesidades de nuestros clientes.

Construcción
De instalaciones eléctricas (alta, media y baja tensión)
Suministro y colocación de ducteria en PVC, galvanizado o aluminio, cableado de todos los calibres, tableros tipos Iline, QED, QDLOGIC, transferencias, plantas de emergencia, interruptores termo magnéticos, luminarias, contactos, apagadores, conexión de HVAC, UMAS, CHILLERS, Mini Split, condensadoras, unidades paquete, fan and coil y todo tipo de motores y equipos de la industria.

Proyectos
Proyectos ejecutivos, (arquitectónicos, ingenierías, instalaciones)
Planos a nivel ejecutivo arquitectónicos e ingenierías, descripción a detalle de todas las áreas, así como los estudios necesarios (memorias de cálculo) de las ingenierías, basado en normas vigentes.

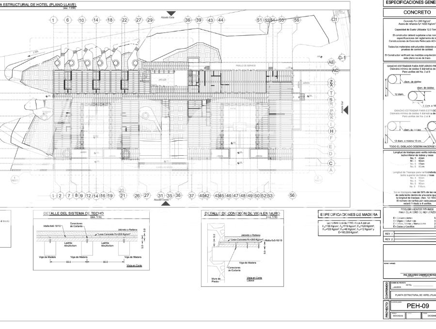
Cálculo
Calculo estructural
Análisis y Diseño Estructural : Memoria de cálculo y planos estructurales
completos con especificaciones de construcción.

Diseño
Diseño de modelos arquitectónicos en 3D
Vistas realizadas en computadora de cómo va a quedar su construcción, antes de iniciar los trabajos para su aprobación o adecuación y su posterior inicio.

Gestoría
Gestoría en tramites de construcción ante dependencias municipales y estatales
Permisos de todo tipo de licencias de construcción y/o remodelación, así como el proyecto y planos necesarios.

Supervisión
Supervisión y administración de proyectos y construcciones
Control de todos los materiales y mano de obra mediante explosión de insumos y rendimientos establecidos, así como de avances y calidad de la construcción.

Construcción
Construcción de obra civil
Construcción de todo tipo de obra en el ámbito tanto publico como privado, desde la cimentación, muros, aplanados, hasta aluminio, carpintería, colocación de pisos y azulejos, pintura.

Instalaciones
Construcción de instalaciones hidro-sanitarias y pluviales
Colocación de todo tipo de redes hidráulicas, sanitarias y pluviales, para casa habitación, edificios y vialidades.
